Bégonia - F3

Accueil Vélo
Lodgings and furnished rentals
accueil-velo Questa struttura è Accueil Vélo e si impegna ad accogliere i ciclisti. Vedi i suoi impegni

Descrizione

Stay at the foot of an Alpine village in the Vésubie valley, Mercantour surrounded by chestnut and larch trees. Set of 8 adjoining communal gîtes located in the Puey district. Ideal for meeting up with several families or friends while maintaining privacy by reserving several gîtes. Gîte Bégonia is adjoining Gîte Aubépine (4102) and Cyclamen (4104). Leisure park nearby, shops and swimming pool (in summer) in the village. The Col de Turini road (12km) and its numerous bends are famous in the automobile world. In fact, every year in January the Monte Carlo Rally organizes one of its specials there. 15km away, many activities await you in summer and winter at the Camp d'Argent station, and particularly around the Authion massif. 12km also to reach the spa resort of Berthemont les Bains.

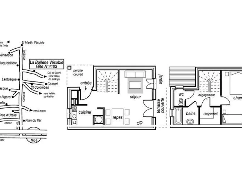
Bégonia duplex gîte : Ground floor : Entrance, covered porch. Living room with kitchen area 20 m2 with 1 sofa bed for 2 people (140x190). TV with indoor antenna. 1st floor : 1 bedroom 13 m2 with 1 double bed (140x190) and 1 single bed (90x190). Bathroom. Separate WC. Covered terrace. Private enclosed garden (11 m2). Electric heating. Charges included. Tourist tax extra. Car park.
Garage per biciclette: No
Pranzo al sacco: No
Ricarica per biciclette elettriche: No
Ti interessa questa struttura? Visita il loro sito per prenotare o saperne di più.

Localisation

Ti interessa questa struttura? Visita il loro sito per prenotare o saperne di più.

Altri Accueil Vélo nelle vicinanze

Gîte Géranium

Lodgings and furnished rentals
Accueil Vélo
La Bollène-Vésubie

Gîte Cyclamen

Lodgings and furnished rentals
Accueil Vélo
La Bollène-Vésubie

Gîte Aubépine

Lodgings and furnished rentals
Accueil Vélo
La Bollène-Vésubie

Gîte Le Dahlia

Lodgings and furnished rentals
Accueil Vélo
La Bollène-Vésubie

Gîte Freesia

Lodgings and furnished rentals
Accueil Vélo
La Bollène-Vésubie

Bégonia - F3

Lodgings and furnished rentals
Accueil Vélo
La Bollène-Vésubie
Hai informazioni da comunicarci su questa struttura?
Segnala un problema