Les Condamines - La Brissaouda
Maison mitoyenne située au calme dans un environnement de verdure sur les collines entre Nice et Vence.
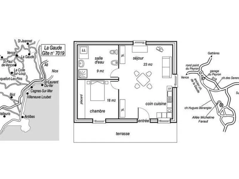
The Provençal Mas "La Brissaouda" is located in a green setting particularly appreciated for its natural environment. In the immediate vicinity: hiking trails, mountain bike trails, climbing center, tennis. 20% reduction on the rate for the third consecutive week of a rental.Gîte adjoining the owner's house. Access on one level via private terrace. Living room including 1 sofa bed for 1 person (140x190). Open kitchen equipped with every comfort. 1 Bedroom with 1 double bed (140x190) high-end bedding. Shower room, WC. Independent terrace on land planted with centuries-old olive trees. Enclosed parking equipped with a charging station for electric cars. Secure and equipped bike room. Electric heating. All charges included except tourist tax. Optional: Cleaning package and linen/toilet rental, sheets: €22/pers. Possibility to recharge car electric terminal at extra cost.
Caratteristiche
 Garage per biciclette No
 Pranzo al sacco No
 Ricarica per biciclette elettriche No
Questa struttura offre servizi speciali per i ciclisti.
Contact par mail
* Campi obbligatori
